Air Shows

Related Links
       

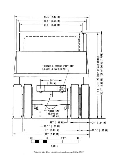
M817, Dump Truck, 5 Ton, 6X6
       

M817, Dump Truck, 5 Ton, 6X6

M817, Dump Truck, 5 Ton, 6X6

M817, Dump Truck, 5 Ton, 6X6

M817, Dump Truck, 5 Ton, 6X6

M817, Dump Truck, 5 Ton, 6X6

M817, Dump Truck, 5 Ton, 6X6